×
VerkoopVerhuurNieuwbouwContact

Schatting Realisaties

NL FR

hui te koop

€ 350.000
Ref. huis001
3

Thomas Moureau
+ (0)

Interesse in dit vastgoed?

Vereiste velden *

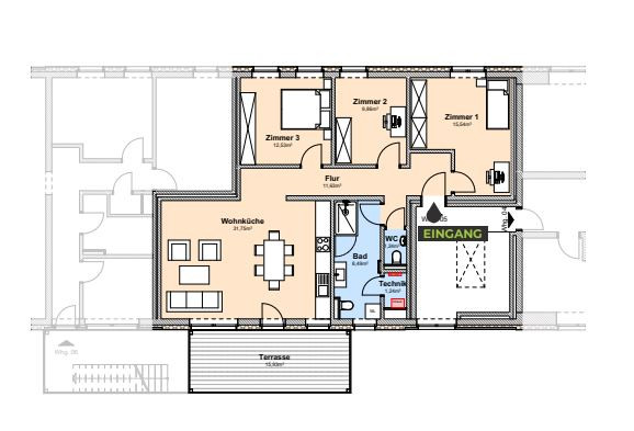
Specificaties:

Type: Huis
Bouwjaar:
Algemene staat:
Slaapkamer(s):3
Adres: 5
, Zonhoven
K.I.:

Indeling:

Slaapkamer3
Woonkamer1
Eetkamer1

Technische info:

Watertoets:
Zone:
G-score
P-score
Stedebouwkundige info:
Vergunning: Nee
Bestemming:
Voorkooprecht: Nee
Verkavelingsvergunning: Nee
Top